close
浙江省杭州市萧山区新街街道⼭山末址村1098号-18A
18A NO.1098 Shanmozhi Billage,Hangzhou City,Zhejiang ProvinceNo.1098,Shanmozhi Village,xinjie Xiaoshan Hangzhou,Zhejiang,China
电话:0571-82533477/83733477
传真:0571-82633477
时尚品牌Celine的商店开发了一系列新的视觉形象,涵盖其纽约,巴黎,东京和洛杉矶的部分门店,包括更换墙面,室内大理石和镜面内饰等。
Fashion brand Celine’s store has developed a series of new visual images, covering some of its stores in New York, Paris, Tokyo and Los Angeles, including replacement of walls, interior marble and mirrored interiors.
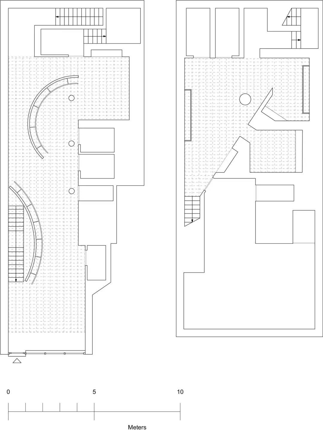
平面图
爆炸分析图
在麦迪逊大道开设的全球最大概念店,也是崭新CELINE店面首度亮相,店内部分区域采用原石为元素,用大理石与灰色洞石互相搭配,地板则是用罗马熔岩石,墙身使用石灰基,完全是一间由天然素材打造的概念店,完美呈现当代建筑艺术之美。
The world’s largest concept store opened on Madison Avenue, New York, is also the first appearance of the new CELINE storefront. Some areas of the store use rough stone as elements, and use marble and gray travertine to match each other. The floor is made of Roman lava stone and the walls are made of lime. , Is a concept store made of natural materials, perfectly presenting the beauty of contemporary architectural art.
微水泥材质的正方体被用于制作水平搁板,这些搁板衬在周边墙壁和低洼的底座上,底座上装有LED,使其看起来像是悬浮在地面上。
Polished stainless steel has been used to craft horizontal shelves that line the peripheral walls and low-lying plinths, which have been fitted with LEDs so as to appear to hover above the ground.
东京Celine商场里,一段旋转的楼梯蜿蜒而下
A sweeping staircase winds down through the Celine store in Tokyo
商店内部的地面和底层使用不同的空间和材质定义不同的区域。设计团队使用了三个主要的设计元素来定义空间。
Different spaces and materials are used to define different areas on the ground and ground floor inside the store. The design team used three main design elements to define the space.
简单的几何形式被用来创建结构在两个楼层。带有照明的开放式网格天花板在车间上方创造了一个连续的、明亮的边界。最后,用威普斯丹艺术涂料的微水泥系列涂料渲染应用于所有的展厅墙面。
Simple geometric forms were used to create the structure on two floors. The open grid ceiling with lighting creates a continuous, bright boundary above the workshop. Finally, the micro-cement series of wipstain art paint rendering was applied to all wall and ceiling surfaces.
WIPESTAIN
独/家/定/制
微水泥
WIPSTAIN威普斯丹微水泥系列质感流线的墙面材质创造了一种独特的氛围,并放大了该品牌当代和永恒的创意方向。
The streamlined wall material creates a unique atmosphere and amplifies the contemporary and timeless creative direction of the brand.
门店所使用部分墙面材质来自WIPESTAIN
威普斯丹艺术涂料微水泥系列
本次翻新项目材料包括定制的威普斯丹艺术涂料墙面、定制水磨石地板、钢琴饰面波浪木墙、不锈钢和镶嵌的黄铜,与商店的大型混凝土结构无缝融合。给品牌的空间增添了无限的质感和想象空间。
The materials for this renovation project include custom WIPESTAIN art paint walls, custom terrazzo floors, piano veneer wavy wood walls, stainless steel and inlaid brass, which seamlessly integrate with the large concrete structure of the store. Add unlimited texture and imagination to the brand's space