close
浙江省杭州市萧山区新街街道⼭山末址村1098号-18A
18A NO.1098 Shanmozhi Billage,Hangzhou City,Zhejiang ProvinceNo.1098,Shanmozhi Village,xinjie Xiaoshan Hangzhou,Zhejiang,China
电话:0571-82533477/83733477
传真:0571-82633477
Project:Rome Museum of Contemporary Art
Year:2010
Work started in:2007
Work finished in:2010
Cost:17,5 M€
Status:Completed works
Type:Museums / Recovery of industrial buildings
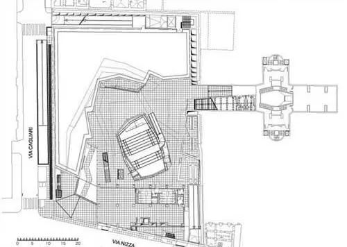
位于意大利罗马弗拉米尼奥区的国立二十一世纪艺术博物馆(MAXXI) 是一座当代艺术与建筑博物馆。这座博物馆是由意大利文化遗产部下属基金会创立,邀请当时世界著名建筑师扎哈·哈迪德(Zaha Hadid)担任设计,该馆致力于艺术和建筑的实验和创新,而博物馆建筑本身就是一件非常伟大的建筑作品。
耗资六千万欧元,历时10年,设计灵感来自巴洛克和罗马的历史,不仅获得2010年的德国斯特林奖(Stirling Prizel),之后又获得了英国皇家建筑师学会金奖(Royal Institute of British Architects)
Museo nazionale delle arti del XXI secolo
它就是建筑界女魔头扎哈·哈迪德所设计的
罗马国立21世纪美术馆,MAXXI。
身为建筑界的“解构主义大师”,扎哈·哈迪德的设计一向以大胆的造型出名,更是被她的崇拜者称为“建筑设计的女皇”。通过构成主义理论与现代主义元素的融汇,扎哈认为建筑无需任何多余的装饰,即建筑本身便是空间的最大装饰和功能集合,而在建筑的内部,她倾向于创造充满了流动性和通明性的思维空间。这样结构主义和现代主义的融合,呈现出一种柔软、连续和非几何性的自由形态。
MAXXI的艺术与建筑藏品:“空间”
展厅内的自然环境、路线和从外部引进的流水等设计都使其成为了一道景观。整个博物馆成了一个流动的空间,从公共空间到私人空间再到公共空间形成了一个连贯的统一体。
与周边的动态空间相对,展览空间则更加中性。设计打破常规,为艺术家们提供了一个简单的环境;同时也为展品提供了不同的展出方式,或悬挂,或悬浮,或漂浮于空间中……
MAXXI基金会主席皮奥巴尔迪说:“MAXXI不会像其他博物馆一样,它将不只是一个展示艺术作品的地方,更是一个可以用来比较当代不同设计语汇的研究工作室。”
在设计、时尚和生活中,通过艺术和建筑的交融建立起彼此的关系,这才是一个真正启发创造力的空间,正如威普斯丹艺术涂料的初心。
Scene: Kitchen
Scene: rotating stairs
Scene: public space
Scene: washstand
威普斯丹WIPESTAIN将建筑本身视为视觉艺术展览的中心。室内外的空间特质由横越过空间的墙以及墙与墙之间彼此的交汇点而被重新定义。